| The Aleph Residences apartment building, designed by Foster + Partners, is located in the Faena Arts and Technology District of Buenos Aires, Argentina. Photo: Nigel Young/ Foster + Partners |
Foster + Partners has completed the nine-story Faena Aleph Residences, in Buenos Aires, Argentina; Berdichevsky-Cherny Arquitectos were co-architects for the project. The mixed-use building comprises 50 apartments on the upper floors, ground-floor retail space, and a landscaped rear garden. The project is part of a phased development called the Faena Arts and Technology District, which combines new construction with the refurbishment of historic buildings to create a sustainable mixed-use urban neighborhood.
| An apartment living space in the Aleph Residencs. Photo: Nigel Young/ Foster + Partners |
The Aleph apartments offer indoor and outdoor living experiences. Double-height patios are combined with split-level living spaces. A predominance of bronzed floor-to-ceiling glazing provides each apartment with considerable daylight access while operable exterior sun screens shade both patios and interior spaces.
| Shaded balcony of the Aleph. Photo: Nigel Young/ Foster + Partners |
The building's structure is predominantly fair-faced cast-in-place concrete that is exposed both inside and out. In the ceilings, repeating, segmentally vaulted concrete infill panels span between structural beams, giving each space a bit of texture. Bathrooms are finished with stone tiles and balustrades are wood.
![]() |
| Third-floor plan drawing. Image: Foster + Partners |
"Inspired by the architectural and cultural legacy of the Belle Époque era, the apartments blur the boundaries between outdoor and indoor space to redefine urban living. Double-height patios are combined with split-level living spaces, and each apartment has vaulted ceilings and bronzed sliding windows to maximise natural ventilation. Through a combination of moveable sunscreens and projecting balconies, shade can be modified for both low and high sun angles, while ensuring privacy and drawing daylight into the living spaces and terraces." – Foster + Partners
| A bathroom in the Aleph Residences. Photo: Nigel Young/ Foster + Partners |
The project is the firm's first in Latin America.
Project Credits
- Architect: Foster + Parnters
- Co-Architect: Berdichevsky-Cherny Arquitectos
- Client: Faena Group
- Consultants: Jose Norberto Galay and Buro Happold, Bovis Lend Lease, Estudio Grinner, Olin Partnership, Estudio Grinberg, Estudio Labonia, Fluidity Design Consultants, Martin Evans and Sylvia de Schiller, Theatre Projects Consultants
![]() |
| Cross section drawing. Image: Foster + Partners |
| Looking up. Photo: Nigel Young/ Foster + Partners |
![]() |
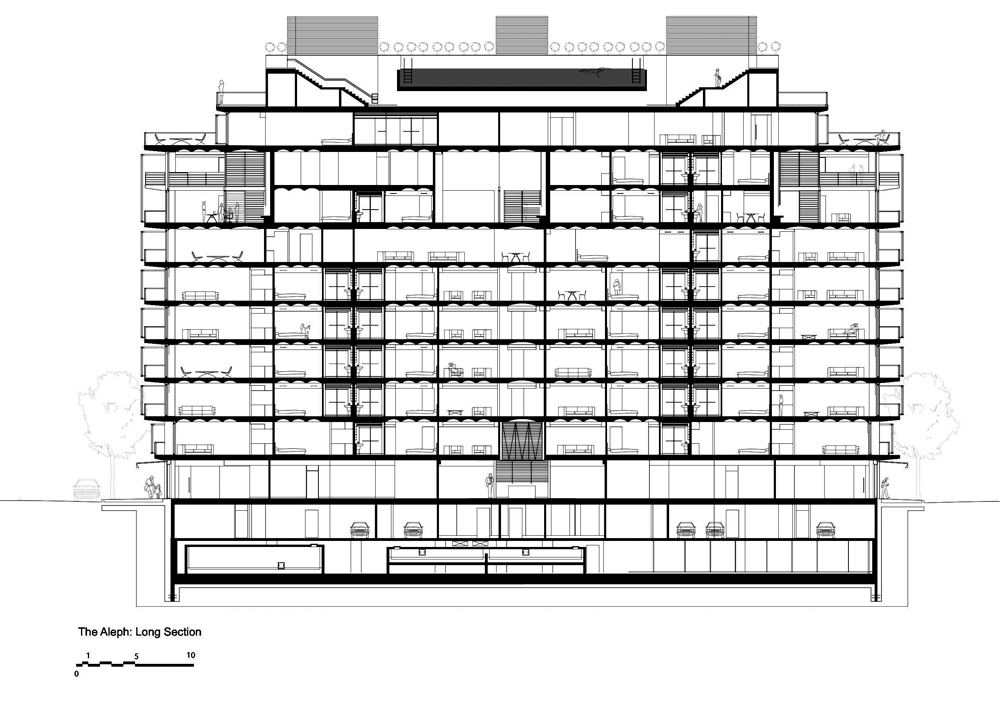
| Longitudinal section drawing. Image: Foster + Partners |



No comments:
Post a Comment